The Lamp House
Pallikaranai, Sai Ganesh Nagar
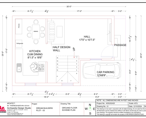
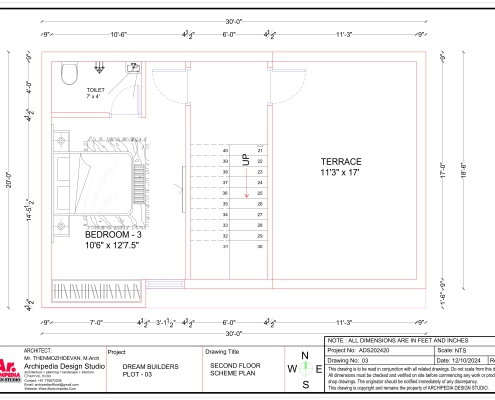
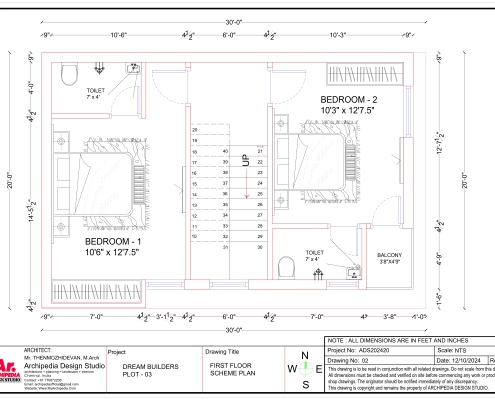
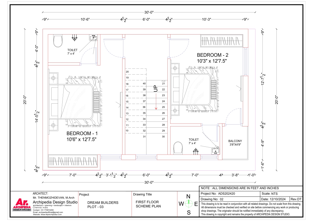
600 sq.ft
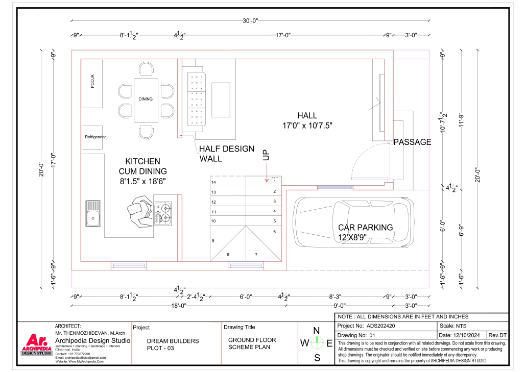
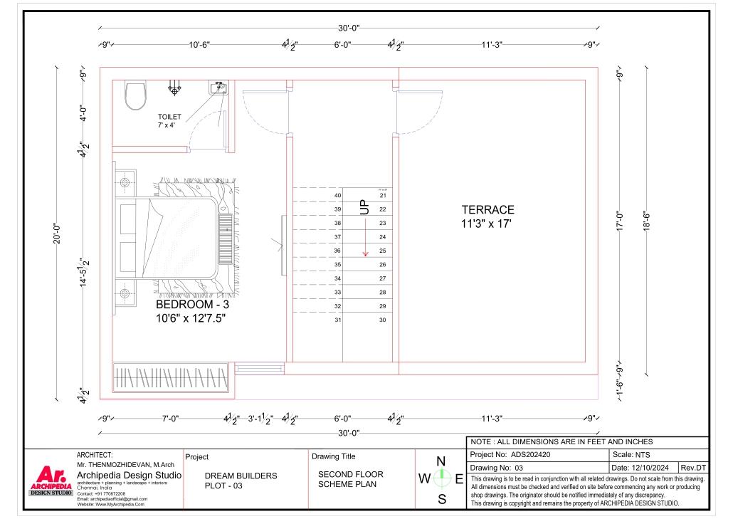
1500 sq.ft
3BHK/ 4 Restrooms
East Facing
72 Lakhs OnwardsOngoing Project
The Lamp House is a new residential project by Dream Big Developers & Builders Pvt. Ltd., located in Pallikaranai, Chennai. This project offers 3 BHK individual houses with a built-up area of 1500 sq. ft., providing spacious living areas, well-designed kitchens, and comfortable bedrooms, perfect for modern family living.
The project is ideally located near schools, colleges, hospitals, supermarkets, and other essential amenities, ensuring convenience for residents. With easy access to major roads and public transport, The Lamp House combines the tranquility of suburban living with the practicality of city life.












